Zac Du Villeray
Saint-Pierre-Du-Perray (91).
OPERATION:
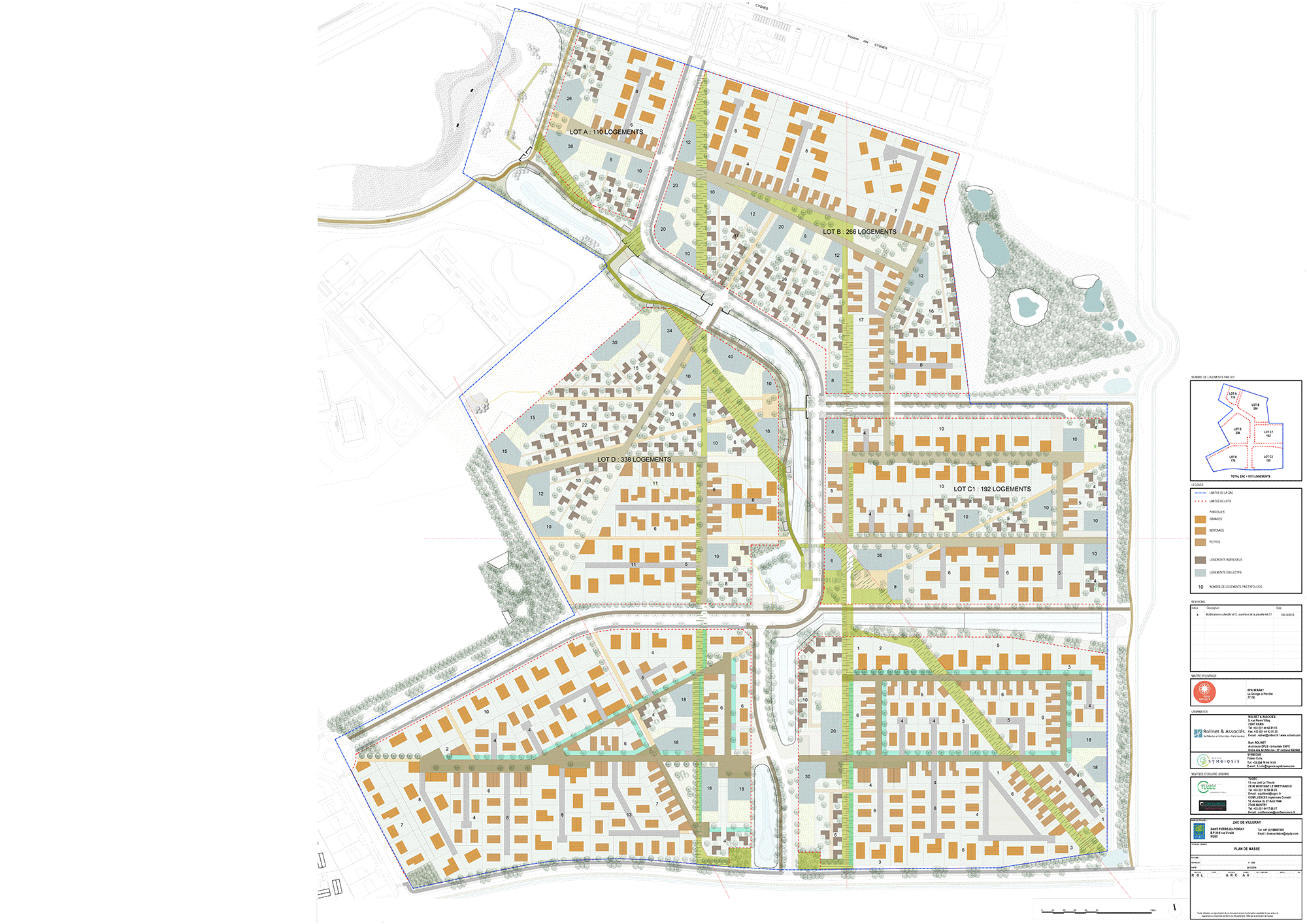
Habiter une trame verte – La ZAC de Villeray est située sur un terrain d’environ 36 hectares situé à l’est du centre ville. Elle est composée de six lots : A, B, C1, C2, D et E. Les lots C2 et E, situés au sud de la ZAC, correspondant à la première phase de réalisation du quartier.
DETAILS DU PROJET
Maîtrise d’ouvrage:
EPA SENART – Ville de Saint-Pierre-du-Perray
Groupement:
ROLINET architectes
SYMBIOSIS paysagiste
Surface traitée: N.C.
Montant prévisionnel: N.C.
Calendrier: Esquisse -AVP : 2019 Cahier de prescriptions et fiches de lots 2020



